- Casa
- Vendita
- Appartamento
- Appartamento Casaletto Via Vincenzo Ussani
- 890.000€
Appartamento Casaletto Via Vincenzo Ussani
Informazioni sulla proprietà
Via Vincenzo Ussani – Esclusivo appartamento con terrazzo, giardino di 600 mq, cantina e box auto
In una delle vie più eleganti e riservate della zona, Via Vincenzo Ussani, immersa nella quiete e caratterizzata da contesti residenziali di alto livello, proponiamo in vendita una prestigiosa residenza situata al primo piano di un condominio signorile.
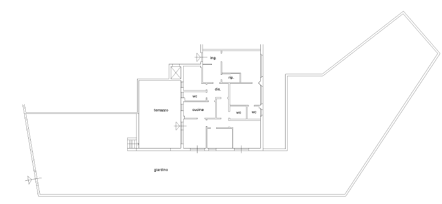
L’appartamento, di grande rappresentanza, si sviluppa su ambienti ampi e luminosi: ingresso, salone doppio, cucina abitabile con tinello, tre camere da letto e tre bagni.
La proprietà gode di un doppio ingresso, sia indipendente che condominiale, con ulteriore accesso da Via Gino Funaioli, elemento che garantisce massima privacy e funzionalità.
Superfici:
- Appartamento: 160 mq
- Terrazzi: 40 mq
- Giardino privato: 600 mq
- Box auto: 20 mq
- Cantina: 4 mq
Elemento distintivo della proprietà è l’esclusivo giardino privato di 600 mq, perfetto per momenti di relax e convivialità, oltre ai terrazzi vivibili che ampliano gli spazi esterni.
Le finiture interne esprimono eleganza e qualità, con pavimentazione in parquet e marmo e infissi in legno Douglas. L’immobile è inoltre dotato di porta blindata e videocitofono.
Riscaldamento centralizzato con contabilizzatori di calore e produzione di acqua calda tramite scaldabagno elettrico.
Una soluzione di prestigio, ideale per chi desidera vivere in un contesto esclusivo, con ampi spazi interni ed esterni, doppio accesso e un elevato livello di privacy e tranquillità.
"La documentazione fotografica allegata comprende sia immagini dello stato di fatto attuale, sia elaborazioni grafiche tridimensionali (rendering). Queste ultime sono finalizzate esclusivamente a illustrare una possibile ipotesi di ristrutturazione e ridistribuzione degli spazi interni, non costituendo vincolo contrattuale."
Dettagli
Caratteristiche
- Ampio salone
- Aria condizionata
- Armadiatura su misura
- Bagno con doccia
- Bagno finestrato
- Camera matrimoniale
- Cameretta
- Cancelletti di sicurezza
- Condizionatore
- Cucina abitabile
- Cucina tinello
- Doppio ingresso
- Grate di sicurezza
- Infissi in legno
- Marmo
- Pavimento in marmo
- Pavimento in parquet
- Porta blindata
- Porte interne in legno
- Riscaldamento centralizzato
- Salone doppio
- Videocitofono
Plamimetrie
Classe energetica
-
Classe energetica: G
-
Indice di prestazione energetica globale IPE: 180
- A+
- A
- B
- C
- D
- E
- F
- 180 | Classe energetica GG
Calcolatore Mutuo
-
Acconto
-
Importo del prestito
-
Rata mensile del mutuo
-
Imposta sulla proprietà
-
Assicurazione sulla casa
-
Assicurazione Ipotecaria Privata
-
Spese condominiali mensili
Prenota una visita
Annunci simili
Appartamento Monteverde Viale dei Colli Portuensi
- 325.000€
- Letto: 1
- Bagno: 1
- 70 m²
- Appartamento
Appartamento Monteverde Via Isacco Artom
- 330.000€
- Letti: 2
- Bagni: 2
- 95 m²
- Appartamento
Superattico Monteverde Via Adolfo Gandiglio
- 450.000€
- Letti: 2
- Bagni: 2
- 90 m²
- Appartamento, Attico/Mansarda
Appartamento Monteverde Via Carlo Oreste Zuretti
- 535.000€
- Letti: 3
- Bagni: 2
- 120 m²
- Garage/Box Auto: 1
- Appartamento









































