- Casa
- Vendita
- Appartamento
- Appartamento Portuense Via Ruggiero Settimo
- 345.000€
Via Ruggiero Settimo, Municipio Roma XI, Roma, Roma Capitale, Lazio, 00149, Italia
Appartamento Portuense Via Ruggiero Settimo
Appartamento
Camere2
Bagno1
m²80
VG4078
Informazioni sulla proprietà
Nel cuore del quartiere Portuense, in una delle vie più comode e servite, proponiamo in vendita un raffinato trilocale situato più precisamente in Via Ruggiero Settimo, all’interno di una palazzina in cortina recentemente ristrutturata.
L’appartamento, in ottimo stato è posto al terzo piano e dotato di finiture moderne e funzionali.
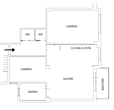
L’immobile è composto da:
- Ingresso
- Ampio salone con cucina a vista
- Due camere da letto (di cui una particolarmente spaziosa)
- Bagno,
- Due comodi ripostigli
- Balcone
- Soppalco
Caratteristiche e dotazioni:
- Porta blindata
- Serrande elettriche
- Climatizzazione
- Parquet
- Infissi in alluminio doppio vetro a taglio termico
- Porte in laminato bianco con cerniere a scomparsa
- Pareti in tinta
- Riscaldamento centralizzato con contabilizzatore
- Fibra ottica
- Esposizione sud
Soluzione ideale per chi cerca un appartamento già pronto da vivere, in una delle zone più servite e richieste del quartiere Portuense.
Dettagli
Anno costruzione1970
Interni m²80
Esterni m²4
Camere2
Bagno1
Piani Immobile5
Piano3°
Nelle vicinanze
Calcolatore Mutuo
Mensile
-
Acconto
-
Importo del prestito
-
Rata mensile del mutuo
-
Imposta sulla proprietà
-
Assicurazione sulla casa
-
Assicurazione Ipotecaria Privata
-
Spese condominiali mensili
Prenota una visita
Annunci simili
Appartamento Portuense Via di San Pantaleo Campano
- 275.000€
- Letto: 1
- Bagno: 1
- 75 m²
- Appartamento
4 settimane fa
4 settimane fa
Quadrilocale con Posto Auto, Cantina e Soffitta
- 429.000€
- Letti: 3
- Bagni: 2
- 115 m²
- Garage/Box Auto: 1
- Appartamento
4 mesi fa
4 mesi fa
Appartamento Villa Bonelli Largo Giuseppe La Masa
- 925.000€
- Letti: 4
- Bagni: 3
- 160 m²
- Garage/Box Auto: 2
- Appartamento
5 mesi fa
5 mesi fa
Appartamento Villa Bonelli Via Enrico Mizzi
- 680.000€
- Letti: 2
- Bagni: 2
- 140 m²
- Garage/Box Auto: 2
- Appartamento
7 mesi fa
7 mesi fa




























