- Casa
- Vendita
- Appartamento
- Appartamento Villa Bonelli Largo Giuseppe La Masa
- 925.000€
Appartamento Villa Bonelli Largo Giuseppe La Masa
Informazioni sulla proprietà
Prestigioso appartamento Villa Bonelli Largo Giuseppe La Masa
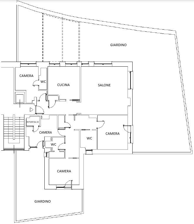
In uno dei contesti più tranquilli e residenziali di Villa Bonelli e più precisamente in Largo Giuseppe La Masa proponiamo in vendita un rifinitissimo appartamento completamente ristrutturato con materiali di pregio, posto al piano terra di una palazzina in cortina di cinque piani, in perfetto stato manutentivo.
Composizione interna:
• Ingresso accogliente
• Salone doppio
• Cucina abitabile
• Quattro camere da letto
• Tre bagni finemente rifiniti con marmo e maioliche
• Ripostiglio
• Splendido terrazzo perimetrale angolare di 210 mq
• Completa la proprietà un box auto doppio di circa 35 mq, raggiungibile comodamente tramite scala interna o ascensore condominiale.
Dotazioni e finiture:
• Infissi in legno/alluminio con vetrocamera
• Zanzariere e grate di sicurezza
• Porte laccate bianche
• Climatizzazione in ogni ambiente
• Riscaldamento autonomo con caldaia a condensazione
• Ottima esposizione est-sud-ovest
Posizione strategica, riservata ma ben collegata, a pochi minuti da tutti i servizi del quartiere.
Contattaci ora per maggiori informazioni o per prenotare una visita.
Una casa pronta da vivere, con spazi rari da trovare in città.
Dettagli
Caratteristiche
Calcolatore Mutuo
-
Acconto
-
Importo del prestito
-
Rata mensile del mutuo
-
Imposta sulla proprietà
-
Assicurazione sulla casa
-
Assicurazione Ipotecaria Privata
-
Spese condominiali mensili
Prenota una visita
Annunci simili
Appartamento Portuense Via Licciana Nardi
- 180.000€
- Letto: 1
- Bagni: 2
- 75 m²
- Appartamento
Appartamento Villa Bonelli Via dell’Imbrecciato
- 195.000€
- Letto: 1
- Bagno: 1
- 40 m²
- Appartamento
Appartamento Portuense Via Francesco Pallavicini
- 245.000€
- Letti: 2
- Bagni: 2
- 70 m²
- Appartamento
Appartamento Portuense Via di San Pantaleo Campano
- 275.000€
- Letto: 1
- Bagno: 1
- 75 m²
- Appartamento






































