- Casa
- Vendita
- Appartamento
- Attico/Mansarda
- Attico Largo La Loggia Via Santorre di Santarosa
- 780.000€
Via Santorre di Santarosa, Portuense, Municipio Roma XI, Roma, Roma Capitale, Lazio, 00149, Italia
Attico Largo La Loggia Via Santorre di Santarosa
Appartamento, Attico/Mansarda
Locali4
Camere2
Bagni2
m²130
Garage / Box1
VG4104
Informazioni sulla proprietà
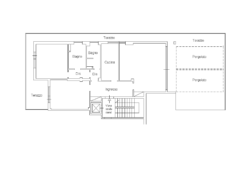
Attico Panoramico con Terrazzo di 120 mq e Box Auto
Via Santorre di Santarosa, proponiamo in vendita un esclusivo attico panoramico situato al 4° ed ultimo piano di una palazzina esternamente rivestita in cortina.
L’immobile si presenta ristrutturato con materiali di pregio, si distingue per eleganza, luminosità e cura dei dettagli.
✨ Composizione:
- Ingresso
- Salone doppio
- Cucina abitabile
- Due camere matrimoniali
- Doppi servizi, di cui uno en suite con vasca idromassaggio
- Terrazzo abitabile perimetrale di circa 120 mq con pergotenda motorizzata
- Cantina
- Box auto
🌿 Il terrazzo rappresenta il vero valore aggiunto: uno spazio panoramico ideale momenti di relax e convivialità, con affacci aperti e riservati.
🏡 Finiture e dotazioni:
- Pavimentazione in marmo e parquet
- Porte in legno massello
- Armadi a muro su misura
- Infissi blindati in legno esternamente in pvc con doppio vetro
- Serrande elettriche
- Impianto di climatizzazione in tutti gli ambienti
- Sistema di allarme volumetrico e perimetrale
- Controsoffitti con faretti LED
- Impianti a norma
- Riscaldamento centralizzato con contabilizzatori
- Cucina arredata con elettrodomestici di alta fascia
Una soluzione ideale per chi desidera vivere in un contesto residenziale tranquillo, senza rinunciare a comfort, privacy e spazi esterni vivibili.
Dettagli
Anno costruzione1970
Interni m²130
Esterni m²120
Locali4
Camere2
Bagni2
Piani Immobile4
Piano4°
Caratteristiche
Plamimetrie
Classe energetica
-
Classe energetica: G
-
Indice di prestazione energetica globale IPE: 180
- A+
- A
- B
- C
- D
- E
- F
- 180 | Classe energetica GG
Nelle vicinanze
Calcolatore Mutuo
Mensile
-
Acconto
-
Importo del prestito
-
Rata mensile del mutuo
-
Imposta sulla proprietà
-
Assicurazione sulla casa
-
Assicurazione Ipotecaria Privata
-
Spese condominiali mensili
Prenota una visita
Annunci simili
Appartamento Monteverde Via Livio Tempesta
- 610.000€
- Letti: 2
- Bagni: 2
- 130 m²
- Appartamento
1 settimana fa
1 settimana fa
Attico Tomba di Nerone Via Cassia
- 960.000€
- Letti: 3
- Bagni: 2
- 140 m²
- Garage/Box Auto: 1
- Appartamento, Attico/Mansarda
3 settimane fa
3 settimane fa
Attico e superattico EUR Viale Città D’Europa
- 499.000€
- Letti: 2
- Bagno: 1
- 95 m²
- Appartamento
3 settimane fa
3 settimane fa
Attico e Superattico Colle del Sole Via Fulda
- 439.000€
- Letti: 3
- Bagni: 3
- 175 m²
- Garage/Box Auto: 1
- Appartamento, Attico/Mansarda
3 settimane fa
3 settimane fa









































