- Casa
- Vendita
- Attico/Mansarda
- Attico Portuense Vicolo Clementi
- 530.000€
Vicolo Clementi, Portuense, Municipio Roma XI, Roma, Roma Capitale, Lazio, 00148, Italia
Attico Portuense Vicolo Clementi
Attico/Mansarda
Locali4
Camere3
Bagni2
m²135
Garage / Box1
VG3094
Informazioni sulla proprietà
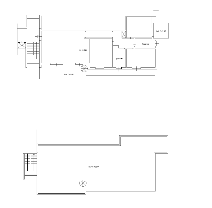
Vicolo Clementi all'interno di un condominio signorile costituito da 3 palazzine proponiamo la vendita di un attico panoramico completamente ristrutturato su due livelli collegati a mezzo scala è così composto:
- Piano 3: ingresso, salone, cucina, tre camere, due bagni e due terrazzi abitabili.
- Piano 4: terrazzo di 135 mq.
Completano la proprietà un ampio box auto e un posto auto condominiale.
Finiture:
Impianto di domotica, duplice riscaldamento ( autonomo con caldaia e con camino a pellet ), aria condizionata, filodiffusione, allarme, infissi legno doppio vetro, grate di sicurezza occhio bottato, controsoffitti con faretti a led, tapparelle elettriche, termoarredi, porta d'ingresso blindata.
Dettagli
Anno costruzione1983
Interni m²135
Esterni m²175
Locali4
Camere3
Bagni2
Livelli2
Piano3°
Nelle vicinanze
Calcolatore Mutuo
Mensile
-
Acconto
-
Importo del prestito
-
Rata mensile del mutuo
-
Imposta sulla proprietà
-
Assicurazione sulla casa
-
Assicurazione Ipotecaria Privata
-
Spese condominiali mensili




























