- Casa
- Vendita
- Appartamento
- Appartamento Centro Storico Via degli Avignonesi
- 620.000€
Appartamento Centro Storico Via degli Avignonesi
Informazioni sulla proprietà
Appartamento Ristrutturato in Via degli Avignonesi – Adiacente Piazza Barberini
Nel cuore del centro storico di Roma, a soli 50 metri da Piazza Barberini, proponiamo in vendita un appartamento esclusivo, appena ristrutturato e arredato con finiture di pregio. Questa proprietà rappresenta la perfetta combinazione tra stile contemporaneo e carattere storico, grazie allo charme dello stabile d’epoca in cui si trova.
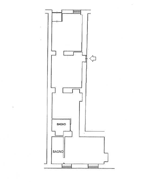
L’immobile si distingue per il doppio ingresso indipendente, che garantisce privacy e flessibilità nell’organizzazione degli spazi, ed è così composto:
- Salone ampio e zona living, ideale per accogliere ospiti o rilassarsi nel massimo comfort
- Cucina tinello, perfettamente attrezzata per chi ama cucinare e intrattenere
- Camera matrimoniale, luminosa e accogliente
- Doppi servizi moderni e funzionali
- Disimpegno che completa la distribuzione degli ambienti
✨ Caratteristiche e finiture di pregio
- Soffitti a cassettoni con travi in legno restaurate, che conservano il fascino storico dell’edificio
- Pavimentazione in monocottura e pareti tinteggiate con cura
- Impianto elettrico completamente a norma
- Climatizzazione e impianto di filtrazione dell’aria, per il massimo comfort in ogni stagione
- Infissi in alluminio con doppio vetro, grate di sicurezza e porta blindata, per una sicurezza completa
Questo immobile rappresenta una soluzione unica per chi desidera vivere nel cuore di Roma, a pochi passi dalle principali attrazioni, dai ristoranti, dalle boutique e dai mezzi pubblici, senza rinunciare a tranquillità e privacy.
Perfetto sia come residenza personale di charme sia come investimento sicuro, grazie alla posizione strategica e all’elevata richiesta di immobili di pregio nel centro storico.
Dettagli
Classe energetica
-
Classe energetica: G
-
Indice di prestazione energetica globale IPE: 180 kWh/m²a
- A+
- A
- B
- C
- D
- E
- F
- 180 kWh/m²a | Classe energetica GG
Calcolatore Mutuo
-
Acconto
-
Importo del prestito
-
Rata mensile del mutuo
-
Imposta sulla proprietà
-
Assicurazione sulla casa
-
Assicurazione Ipotecaria Privata
-
Spese condominiali mensili


































