- Casa
- Vendita
- Appartamento
- Prestigioso Appartamento Monteverde Via Virginia Agnelli
- 915.000€
Prestigioso Appartamento Monteverde Via Virginia Agnelli
Informazioni sulla proprietà
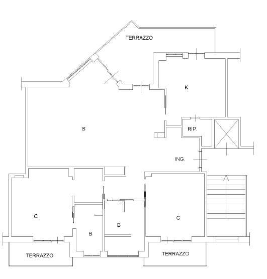
Appartamento di Prestigio in Elegante Complesso Residenziale – Via Virginia Agnelli adiacente Piazza Eugenio Morelli
In un contesto esclusivo immerso nel verde, con piscina condominiale, campo da tennis, area giochi per bambini e servizio di portineria, proponiamo la vendita di uno splendido appartamento di rappresentanza, completamente ristrutturato con materiali di altissimo livello, posto al terzo piano di una palazzina in cortina recentemente ristrutturata.
✨ Composizione interna:
- Ampio ingresso di rappresentanza
- Salone doppio luminoso
- Cucina abitabile
- Due camere matrimoniali
- Due bagni finemente rifiniti
- Lavanderia
- Terrazzo abitabile
- Balcone
Completano la proprietà un comodo box auto doppio, collegato direttamente con scala interna e ascensore.
Finiture e dotazioni di pregio:
- Parquet a listoni di qualità superiore
- Infissi con vetrocamera, zanzariere e grate di sicurezza
- Porte interne a scomparsa in legno massello laccato bianco
- Arredi fissi
- Aria condizionata canalizzata e con split
- Riscaldamento autonomo
- Impianto d’allarme e videocitofono
- Porta blindata
- Doppia esposizione
Posizione strategica: l’immobile si trova in una zona residenziale tranquilla ma al tempo stesso adiacente a tutti i principali servizi di prima necessità, scuole, attività commerciali e mezzi di trasporto, che rendono la quotidianità comoda e funzionale.
Un appartamento di prestigio che unisce comfort, eleganza e servizi esclusivi, ideale per chi desidera vivere in un ambiente raffinato senza rinunciare alla praticità della vita di città.
Dettagli
Classe energetica
-
Classe energetica: C
- A+
- A
- B
- | Classe energetica CC
- D
- E
- F
- G
Calcolatore Mutuo
-
Acconto
-
Importo del prestito
-
Rata mensile del mutuo
-
Imposta sulla proprietà
-
Assicurazione sulla casa
-
Assicurazione Ipotecaria Privata
-
Spese condominiali mensili
Prenota una visita
Annunci simili
Superattico Monteverde Via Adolfo Gandiglio
- 450.000€
- Letti: 2
- Bagni: 2
- 90 m²
- Appartamento, Attico/Mansarda
Attico Monteverde Via Edoardo Jenner
- 545.000€
- Letti: 2
- Bagni: 2
- 130 m²
- Appartamento, Attico/Mansarda
Appartamento Monteverde Via di Monte Verde
- 380.000€
- Letti: 2
- Bagni: 2
- 70 m²
- Appartamento
Appartamento Monteverde Via Isacco Artom
- 345.000€
- Letti: 2
- Bagni: 2
- 95 m²
- Appartamento


