- Casa
- Vendita
- Appartamento
- Attico/Mansarda
- Superattico Casaletto Via Vincenzo Ussani
- 319.000€
Superattico Casaletto Via Vincenzo Ussani
Informazioni sulla proprietà
Superattico ristrutturato, nel verde del Casaletto
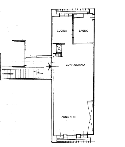
In Via Vincenzo Ussani, una delle strade più riservate e silenziose del quartiere Casaletto, adiacente a Via Lorenzo Rocci, proponiamo in vendita un raffinato superattico di 77 mq completamente ristrutturato, situato all’interno di una palazzina in cortina ben curata e immersa nel verde, con giardino condominiale.
Composizione:
- Ampia zona giorno open space con arredi fissi e zona divano in muratura
- Zona notte ben separata
- Cucina in muratura con piano a induzione
- Bagno finestrato con vasca
- Armadiature su misura realizzate da falegnameria artigianale
- Ripostigli comodi e funzionali
- Cantina di pertinenza
Dettagli e finiture:
- Infissi in doppio vetro con cancelletti di sicurezza
- Pavimentazioni in parquet, gres e ceramiche di qualità
- Porta blindata
- Impianti certificati a norma
- Riscaldamento centralizzato con contabilizzatori
- Accesso al piano tramite una rampa di scale
Distribuzione interna facilmente divisibile.
Contesto e posizione:
L’appartamento è inserito in un contesto residenziale esclusivo, riservato e silenzioso, con ampie aree verdi condominiali curate e fruibili.
A pochi passi dall’ingresso della storica area naturale protetta della Valle dei Casali e in prossimità di Villa Pamphili, è una soluzione ideale per chi desidera vivere immerso nella natura senza rinunciare alla comodità dei collegamenti con il centro città.
Soluzione perfetta per chi cerca:
Un’abitazione esclusiva, luminosa e su misura, in un condominio con generosi spazi esterni comuni, ampie zone verdi, e in una zona ben servita di Roma, ricca di servizi, mezzi pubblici e punti d’interesse culturale e naturalistico.
Contattaci oggi stesso per ricevere maggiori informazioni o per fissare una visita!
Dettagli
Classe energetica
-
Classe energetica: G
- A+
- A
- B
- C
- D
- E
- F
- | Classe energetica GG
Calcolatore Mutuo
-
Acconto
-
Importo del prestito
-
Rata mensile del mutuo
-
Imposta sulla proprietà
-
Assicurazione sulla casa
-
Assicurazione Ipotecaria Privata
-
Spese condominiali mensili
Prenota una visita
Annunci simili
Appartamento Monteverde Via di Val Tellina
- 260.000€
- Letto: 1
- Bagno: 1
- 50 m²
- Appartamento
Appartamento Monteverde Via di Val Tellina
- 260.000€
- Letto: 1
- Bagno: 1
- 50 m²
- Appartamento
Appartamento Monteverde Via di Val Tellina
- 265.000€
- Letto: 1
- Bagno: 1
- 50 m²
- Appartamento
Prestigioso Appartamento Monteverde Via Virginia Agnelli
- 915.000€
- Letti: 2
- Bagni: 2
- 150 m²
- Garage/Box Auto: 2
- Appartamento
























