- Casa
- Vendita
- Appartamento
- Trilocale Prati Viale Angelico
- 530.000€
Trilocale Prati Viale Angelico
Informazioni sulla proprietà
Viale Angelico è una delle arterie più eleganti e richieste della zona Prati, un’area che coniuga perfettamente residenzialità, servizi e qualità della vita. La zona si distingue per il suo carattere signorile, per la presenza di palazzi ben curati e per un contesto urbano ordinato, ideale per chi desidera vivere in un ambiente tranquillo senza rinunciare alla centralità.
Proponiamo in vendita un appartamento trilocale posto al terzo piano di uno stabile curato e ben abitato.
L’immobile si presenta in ottimo stato di manutenzione ed è particolarmente apprezzabile per la sua eccezionale luminosità, garantita dalla doppia esposizione: una esterna sulla via principale e una interna su una corte condominiale silenziosa e molto curata, che assicura tranquillità e luce naturale durante tutta la giornata.
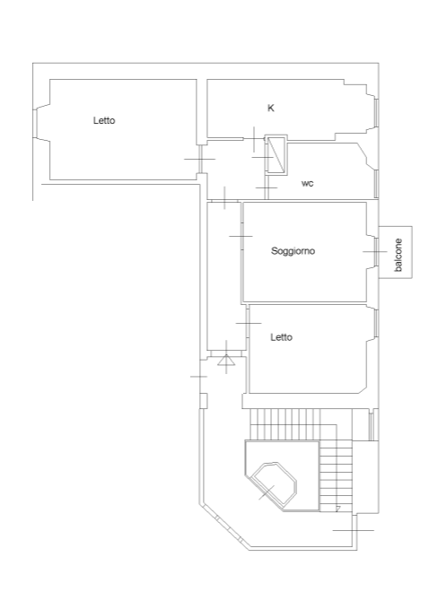
L’immobile è così composto:
- ampio ingresso
- soggiorno
- due camere matrimoniali
- cucina abitabile
- bagno
- balcone
- disimpegno
Gli spazi sono ben distribuiti e funzionali, ideali sia per famiglie che per uso investimento.
Finiture e dotazioni
- Pavimentazione in parquet tipo rovere
- Rivestimenti in maioliche di ottima fattura nei servizi
- Porte interne Noce Tanganica e vetri molati
- Infissi in alluminio anodizzato con doppio vetro
- Porta blindata
- Impianto di allarme
- Aria condizionata
Soluzioni salvaspazio
- Armadio a muro
- Cabina armadio
- Comodo soppalco nel disimpegno
Caratteristiche tecniche
- Riscaldamento centralizzato con contabilizzatori di calore
- Impianto elettrico a norma
Dettagli
Plamimetrie
Classe energetica
-
Classe energetica: G
-
Indice di prestazione energetica globale IPE: 180
- A+
- A
- B
- C
- D
- E
- F
- 180 | Classe energetica GG
Calcolatore Mutuo
-
Acconto
-
Importo del prestito
-
Rata mensile del mutuo
-
Imposta sulla proprietà
-
Assicurazione sulla casa
-
Assicurazione Ipotecaria Privata
-
Spese condominiali mensili



















