- 595.000€
Villa trifamiliare Fregene Via Porto Venere
Informazioni sulla proprietà
Immersa nella splendida e rinomata pineta di Fregene, proponiamo la vendita di una porzione di villa trifamiliare con ampi spazi esterni e finiture di pregio.
La proprietà si distingue per la sua posizione privilegiata, la cura dei dettagli e la possibilità di essere abitata tutto l’anno.
La villa viene venduta completamente arredata con mobili realizzati su misura, perfettamente integrati negli ambienti e pensati per valorizzare al massimo gli spazi.
🌿 Esterni e spazi vivibili:
Un curato giardino privato accoglie la proprietà, dotato di irrigazione automatica con pozzo, posto auto coperto da tettoia e un’ampia veranda di circa 80 mq con vetri impilabili, perfetta come salone anche d’inverno. Completano la parte esterna un ripostiglio, una zona lavanderia e tutti i comfort per vivere appieno gli spazi verdi.
🏠 Interni:
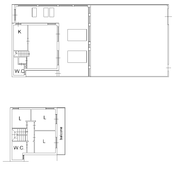
Al piano terra troviamo un ampio salone, un antibagno con bagno completo di doccia, e una cucina abitabile con dispensa.
Al primo piano si sviluppa la zona notte con due camere matrimoniali, una cameretta e un bagno completo. Le camere principali si affacciano su un balcone comune, regalando luminosità e affaccio sul verde.
✨ Finiture e dotazioni:
- Pavimenti in cotto e pareti in carta da parati
- Infissi in PVC doppio vetro con imbotti in peperino
- Persiane di sicurezza, zanzariere e davanzali in travertino
- Porte in legno massello e mobili fissi laccati bianchi
- Riscaldamento autonomo
- Climatizzatori e pale in ogni ambiente
- Impianto d’allarme volumetrico con predisposizione perimetrale
- Illuminazione a LED
- Scala per disabili già predisposta
Un’abitazione ideale per chi desidera vivere il mare senza rinunciare al comfort di una casa di città, perfetta sia come residenza principale sia come abitazione estiva di rappresentanza.
"La documentazione fotografica allegata comprende sia immagini dello stato di fatto attuale, sia elaborazioni grafiche tridimensionali (rendering). Queste ultime sono finalizzate esclusivamente a illustrare una possibile ipotesi di ristrutturazione e ridistribuzione degli spazi interni, non costituendo vincolo contrattuale."
Dettagli
Caratteristiche
- Accesso per disabili
- Balcone
- Giardino
- Impianto di irrigazione automatizzato
- Lavanderia esterna
- Patio
- Posto auto
- Pozzo artesiano
- Veranda
- Allarme
- Ampio salone
- Bagno con antibagno
- Camera matrimoniale
- Cameretta
- Condizionatore
- Cucina abitabile
- Dispensa
- Doppio vetro
- Illuminazione Led
- Infissi in PVC
- Pavimento in cotto
- Persiane
- Porte interne in legno
- Ripostiglio
- Riscaldamento autonomo
- Zanzariere
Plamimetrie
Calcolatore Mutuo
-
Acconto
-
Importo del prestito
-
Rata mensile del mutuo
-
Imposta sulla proprietà
-
Assicurazione sulla casa
-
Assicurazione Ipotecaria Privata
-
Spese condominiali mensili




































