- Casa
- Vendita
- Appartamento
- Attico/Mansarda
- Borgo
- Attico Castel Gandolfo Via Santa Lucia Filippini
- 430.000€
Attico Castel Gandolfo Via Santa Lucia Filippini
Informazioni sulla proprietà
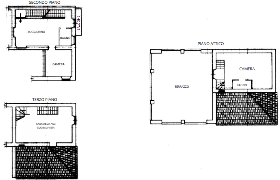
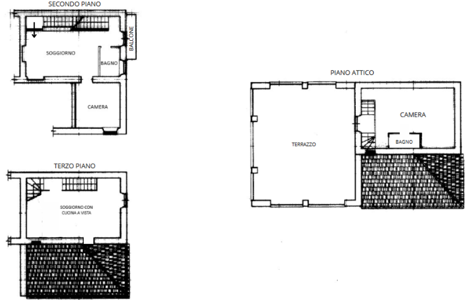
Attico su tre livelli con vista mozzafiato sul Lago di Castel Gandolfo
A pochi passi dalla storica residenza estiva Papapale
Nel cuore di Castel Gandolfo, uno dei borghi più affascinanti dei Castelli Romani, all’interno di uno stabile del 900 e più precisamente in via Santa Lucia Filippini proponiamo in vendita una raffinata casa su due livelli con una spettacolare vista panoramica sul lago, situata a pochi metri dalla celebre residenza estiva del Pontefice.
✨ Caratteristiche principali:
Superficie ampia e ben distribuita su tre livelli di complessivi 115 mq
Zona giorno luminosa con affaccio vista lago
Salone con camino e cucina a vista con annessa zona pranzo
Due camere da letto
Doppi servizi
Terrazzo panoramico di 120 mq
Finiture:
Pavimentazione in cotto, infissi in legno con persiane, scala in Peperino, climatizzazione, arredi fissi, soffitti con travi in legno, pareti in tinta.
Parcheggio pubblico nelle immediate vicinanze.
Ideale per chi cerca un’abitazione di charme, un rifugio per il weekend o un investimento turistico nel cuore della storia e della natura.
Contattaci per maggiori informazioni o per prenotare una visita.
Un angolo di paradiso ti aspetta, a due passi da Roma.
Dettagli
Caratteristiche
Classe energetica
-
Classe energetica: G
- A+
- A
- B
- C
- D
- E
- F
- | Classe energetica GG
Calcolatore Mutuo
-
Acconto
-
Importo del prestito
-
Rata mensile del mutuo
-
Imposta sulla proprietà
-
Assicurazione sulla casa
-
Assicurazione Ipotecaria Privata
-
Spese condominiali mensili
Prenota una visita
Annunci simili
Appartamento Monteverde Via di Val Tellina
- 260.000€
- Letto: 1
- Bagno: 1
- 50 m²
- Appartamento
Appartamento Monteverde Via di Val Tellina
- 265.000€
- Letto: 1
- Bagno: 1
- 50 m²
- Appartamento
Appartamento Monteverde Via di Val Tellina
- 270.000€
- Letto: 1
- Bagno: 1
- 50 m²
- Appartamento
Appartamento Monte Spaccato Via Francesco Landi
- 195.000€
- Letto: 1
- Bagno: 1
- 40 m²
- Appartamento











































